本公司生产的ZZYP自力式单座电动调节阀无需外加能源,利用被调介质自身能量为动力源引入执行机构控制阀芯位置,改变两端的压差和流量,使阀前(或阀后)压力稳定。自力式调节阀具有动作灵敏,密封性好,压力设定点波动力小等优点,广泛应用于气体、液体及介质稳压或泄压的自动控制。
![]()
一、 用途与特点
ZZYP型自力式压力调节阀(简称调压阀)是利用被调介质自身能量实现自动调节的执行器产品。该产品最大特点,能在无电、无气的场所工作,是一种节能产品。压力设定值可在运行中随意调整。常规产品采用快开流量特性,亦可采用线性、等百分比流量特性。动作灵敏,减压比一般情况下最大可达10,最小为1.25,广泛应用于石油、化工、电力、冶金、食品、轻纺、居民楼群等各种工业设备中的气体、液体、蒸汽等介质低压差减压、稳压(用于控制阀后压力),或泄压、稳压(用于控制阀前压力)的自动控制。
二、 结构与原理
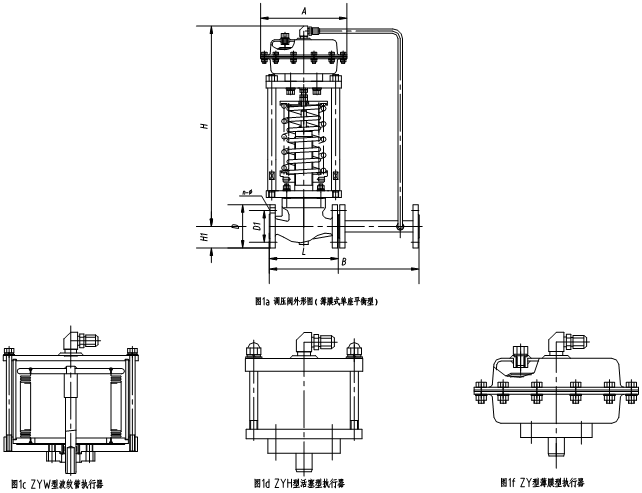
1、结构(图1)
调压阀主要由执行机构、调节机构、导压管与接管等四部分组成。执行机构有薄膜式(用于被调压力≤0.6Mpa)、活塞式(用于被调压力>0.6Mpa)、波纹管式(用于高温或腐蚀性流体),调节机构为单座(波纹管平衡)型式(控制压力≤1.0MPa)。
产品外形图

图1
2、原理(图2)
图2a结构为单座式,阀后压力控制,初始状态常开。原理:介质由箭头方向进入阀体,经阀芯、阀座节流后输出。另一路经冷凝器(介质为蒸汽时使用)冷却后,引入执行机构膜室,其压力作用在膜片有效面积上产生一个推力,带动阀杆、阀芯位移,使节流口面积发生变化,达到减压稳压目的。若阀后压力高于设定值,则作用在膜片上的力增大,压缩弹簧,带动阀芯位移,减小调压阀开度,直至阀后压力下降到设定值。同理,若阀后压力低于设定值,由于弹簧反作用力,带动阀芯位移,增大调压阀开度,直至阀后压力上升到设定值
图2b结构为单座式,阀前压力控制,初始状态常闭。原理:介质由箭头方向进入阀体,另一路经冷凝器(介质为蒸汽时使用)冷却后,引入执行机构膜室,其压力作用在膜片有效面积上产生一个推力,带动阀杆、阀芯位移,使阀门开启度增大,若阀前压力高于设定值,则作用在膜片上的力增大,压缩弹簧,带动阀芯位移,增大调压阀开度,直至阀前压力下降到设定值。同理,若阀前压力低于设定值,由于弹簧反作用力,带动阀芯位移,减小调压阀开度,直至阀前压力上升到设定值。
图2
四、安装、使用与维护
1、 自力式调压阀的安装
调压阀应直立安装在水平管道上,安装方法如图4

图4
安装方式说明
(1) 调节气体,阀前压力调节(K型),过滤器(1)可以不安装
(2) 调节气体,阀后压力调节(B型),过滤器(1)可以不安装
(3) 调节液体,阀前压力调节(K型),对于非清洁流体,应装过滤器(1)
(4) 调节液体,阀后压力调节(B型),对于非清洁流体,应装过滤器(1)
(5) 调节蒸汽,阀前压力调节(K型),应装冷凝器(4),建议装过滤器(1)
(6) 调节蒸汽,阀后压力调节(B型),应装冷凝器(4),建议装过滤器(1)
安装注意事项:
(7) 冷凝器必须高于调压阀的执行机构而低于阀后(阀后调压阀)或阀前(阀前调压阀)接管,以保证冷凝器内充满冷凝液。
(8) 取压点应取在离调压阀适当位置,阀前泄压阀应大于2倍管道直径,阀后调压阀应大于6倍管道直径。
(9) 为便于现场维修操作,调压阀四周应留有适当空间,前后应设置截止阀与旁路手动阀,如图5所示。
(10) 调压阀口径大于DN100时,应设置固定支架。
(11) 介质流动方向应于阀体上箭头指向一致,前后管道中心应对准调压阀两法兰中心,避免阀体承受过大的应力。
(12) 阀前应设置过滤器以防止介质中杂质堵塞导压管。
(13) 调压阀应安装在环境温度不超过-25℃~55℃的场合。
2、自力式调压阀的使用
在常温下使用气体或低粘度液体场合的操作程序;(参见图6)
(1) 缓慢开启阀前后截止阀。
(2) 拧松排气塞或气接头7直至气体或液体从执行机构或导压管内溢出为止。
(3) 然后重新拧紧排气塞或气接头调压阀即可工作。所需压力的大小可通过压力调节盘的调整而得到,调整时,注意观察压力表示值,动作应缓慢,不得使阀杆跟着转动。
使用蒸汽场合时的操作程序;(参见图7)
(1) 从冷凝器上拧下注液口螺钉6。
(2) 拧松执行机构排气塞7。
(3) 使用漏斗通过注液口加水直至从排气孔流出为止。
(4) 控紧排气塞7,继续注水直至溢出注液口。
(5) 拧紧注液口螺钉6。
(6) 缓慢开启调压阀前后截止阀1。
(7) 调整压力调节盘5,并观察压力表示值到要求为止。

图6 图7
2、 自力式调压阀的维修
调压阀投入运行后,一般维护工作量很小,平时只要观察阀前、阀后压力示值是否符合工艺所需值要求即可。另外,观察填料函与执行机构是否渗漏,若渗漏应拧紧或更换填料及膜片。调压阀常见故障排除方法(见表)。




上一款:ZZYP自力式调节阀-(2)
下一款:ZZYVP氮封阀,供氮阀
高温电动调节阀是一种在工业领域中广泛应用的自动控制设备。它通过电动执行器实现对流体的精确调节,适用于高温环境下的各种工艺控制。本文将介绍高温电动调节阀的工作原理和应用领域。